Vzorový dům Housenka firmy 3AE

Jarní dny otevřených dveří

Ing. Václav Valášek - #bydleni #den otevřených dveří #drevostavby

Přijďte si vyzkoušet moderní dřevostavbu

Kromě technologií a architektury vám Den otevřených dveří nabídne možnost setkat se s lidmi, kteří jsou součástí procesu od návrhu až po realizaci. Na místě si můžete promluvit přímo s našimi architekty Lukášem Pejsarem, Markem Pavlasem, projektanty, rozpočtáři nebo stavbyvedoucími.

Protože u nás celý proces od architektonické studie až po samotnou realizaci probíhá pod jednou střechou, rádi vám přiblížíme celý průběh návrhu a stavby domu a odpovíme na otázky, které vás zajímají.

Pokud vás dům zaujal a chcete ho vidět na vlastní oči, můžete se přihlásit na Den otevřených dveří, který se uskuteční ve dvou termínech:

18. dubna a 23. května 2026

Registrace je možná emailem, telefonicky, nebo hlavně prostřednictvím online formuláře, kde u jednotlivých časů uvidíte i aktuální počet přihlášených. Můžete si tak vybrat termín, který vám bude nejlépe vyhovovat, a zároveň budete mít jistotu, že bude dostatek prostoru na klidnou prohlídku i vaše otázky.

Pokud vám žádný z uvedených termínů nevyhovuje, neváhejte nám napsat – rádi s vámi domluvíme individuální návštěvu. V případě, že by Vám krátká prohlídka nestačila, je možné si vzorový dům dokonce pronajmout na celý víkend a naplno zažít atmosféru dřevostavby – se vším, co k ní patří.

Jarní dny otevřených dveří ve vzorovém domě 3AE Housenka.

Jak vlastně vypadá Den otevřených dveří ve vzorovém domě Housenka?

Přijďte si na vlastní oči prohlédnout dům z masivních CLT panelů, který vznikl jako ukázka promyšlené dřevostavby navržené a realizované firmou 3AE.

Během dvou jarních sobot otevřeme dveře domu, kde si můžete projít každý kout, vyzkoušet technologie v praxi a promluvit si s týmem, který ho navrhl a postavil.

Vzorový dům Housenka navrhl jednatel firmy Ing. arch. Lukáš Pejsar. Dům vznikl jako ukázka toho, jak může vypadat moderní dřevostavba navržená s důrazem na funkčnost, promyšlené detaily i dlouhodobou udržitelnost bydlení.

Jak jsme hledali místo pro vzorový dům

Pozemek pro vzorový dům jsme hledali v rozumné dojezdové vzdálenosti od naší kanceláře v Praze. Chtěli jsme místo, které budeme moci pravidelně navštěvovat, ať už s klienty, při pracovních schůzkách, nebo třeba jen jako prostor pro klidnou práci mimo město.

Nakonec jsme ho našli v Čakově, malé obci mezi Prahou a Benešovem.

Neobešlo se to ale bez prvotních úskalí. Pozemek totiž ze dvou stran lemovala vysoká betonová zeď, která na první pohled nepůsobila jako ideální soused pro rodinný dům. Právě tahle situace se ale stala zajímavou architektonickou výzvou.

Promyšlený návrh reagující na pozemek

Návrh domu proto pracuje s orientací a soukromím velmi promyšleně. Na stranách, kde se nachází betonová stěna, jsou okna minimalizovaná nebo slouží pouze jako zdroj přirozeného světla pro chodbu. Hlavní obytné místnosti jsou naopak orientované na druhou stranu pozemku, a to směrem do zahrady a přilehlého lesíka. Díky velkému HS portálu je obývací prostor maximálně propojený s venkovním prostředím a terasa se zahradou se stávají přirozenou součástí každodenního života.

Dispozice domu, která se přizpůsobuje životu

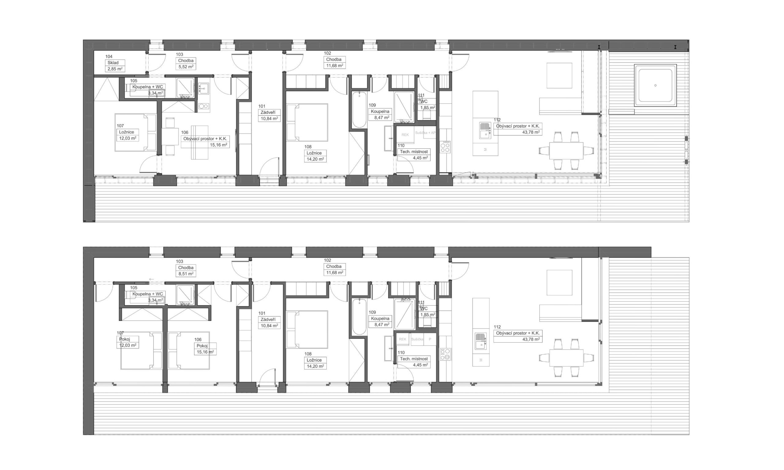
Samotný dům je navržen jako rodinný dům o dispozici 4+kk s užitnou plochou 134 m² a zastavěnou plochou 200 m². Dispozice je přitom řešená tak, aby byla přehledná, funkční a zároveň se dokázala přizpůsobovat proměnám rodinného života.

Dům je rozdělený na dvě hlavní části. V základní variantě dispozice se v jedné části nachází hlavní ložnice, velká koupelna, samostatné WC, obývací pokoj a kuchyň. Druhé křídlo domu, oddělené chodbou, tvoří dva dětské pokoje a menší koupelna. Navíc z každé obytné místnosti vede přímý vstup na terasu a do zahrady.

Jak ale děti postupně vyrostou a odejdou do vlastního života, nemusí zůstat polovina domu prázdná. Díky promyšlenému řešení lze mezi pokoji probourat příčku a vytvořit z této části samostatný apartmán s malou kuchyní. Vznikne tak například garsonka pro dospělé děti, zázemí pro rodiče nebo pohodlný prostor pro návštěvy.

Půdorys dřevostavby Housenka od 3AE

Architektura domu a práce s exteriérem

Dům je navržen jako nízký, horizontálně rozvinutý bungalov, který se maximálně otevírá směrem do zahrady. Dominantním prvkem je výrazný přesah střechy, který vytváří krytou zónu podél celé fasády a zároveň přirozeně stíní velké prosklené plochy.

Podél domu se táhne dlouhá dřevěná terasa, na kterou navazují velkoformátová prosklení s posuvným HS portálem, díky nimž se interiér plynule propojuje se zahradou.

Fasáda kombinuje tmavou falcovanou plechovou fasádu s dřevěným obkladem. Výrazným prvkem domu je také extenzivní zelená střecha, která pomáhá regulovat teplotu v interiéru a přirozeně zapojuje stavbu do okolní krajiny.

Navrženo ve 3D do posledního detailu

Celý projekt byl navržen v 3D BIM modelu, což umožnilo řešit mnoho detailů ještě před samotnou stavbou. Díky tomu jsme například mohli přesně simulovat pohyb slunce během roku. Dům je orientovaný na jih a má velké prosklené plochy, což s sebou přináší riziko přehřívání.

Na základě studie oslunění proto architekt navrhl dostatečný přesah se zelenou střechou. V létě, kdy je slunce vysoko nad domem, přesah zabraňuje přehřívání interiéru. V zimě je naopak slunce nízko nad horizontem a jeho paprsky mohou pronikat hluboko do interiéru, kde přirozeně ohřívají dům a přinášejí maximální pasivní solární zisky.

3D sluneční studie orientace moderní dřevostavby z CLT panelů s přesahem střechy v BIM modelu

Technologie, které pracují za vás

V interiéru domu vás na první pohled zaujmou pohledové masivní dřevěné panely Novatop, které dávají domu jedinečný charakter a atmosféru. Technologickým srdcem domu je chytré řízení domácnosti Loxone, které propojuje jednotlivé systémy domu do jednoho funkčního celku.

Systém dokáže řídit teplotu, osvětlení, hudbu v jednotlivých místnostech, stínění i zabezpečení domu. Dům je vybaven také tepelným čerpadlem a rekuperací. Během návštěvy si můžete sami vyzkoušet, jak funguje podlahové vytápění, nebo zjistit, jestli uslyšíte rekuperaci i při plném výkonu. Můžete si udělat vlastní obrázek o tom, jak funguje pasivní dům v každodenním životě.

 

Jak vypadala atmosféra minulých dní otevřených dveří? Podívejte se na krátké video z akce na našem YouTube kanálu.

 

Budeme se na vás těšit.

Tým 3AE

Den otevřených dveří ve vzorovém domě 3AE – prohlídka moderní dřevostavby

Chtěl jsem navrhnout dům, který bude fungovat stejně dobře pro rodinu s malými dětmi jako pro pár, kterému děti už odešly z domu. Dům, který se dokáže přizpůsobovat životu jeho obyvatel.

Mám zájem

    Odesláním souhlasíte se zpracováním osobních údajů.

    Technický katalog 3AE ke stažení